Church and Landscape, CMP Group Taichung Mixed-use Development Liuyuan Presbyterian Church
A sanctuary within the urban jungle, this chapel rises from a narrow site enclosed by towering buildings. In response to the site’s tight constraints, the architecture grows vertically, drawing inspiration from the gesture of praying hands to create a sacred and uplifting space for worship.
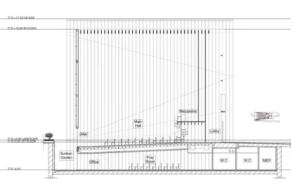
A skylight at the top draws natural light into the chapel’s interior, reaching even the basement level and enhancing the spiritual experience of both the main hall and the circulation areas.
The chapel’s form is shaped by a delicate rhythm of slender wooden columns—each uniquely angled in a subtle gradient. While seemingly repetitive, these vertical elements create a quiet sense of movement and dignity. They not only define the architectural form, but also organize the spaces within—from the main hall to the underground level—conveying a sense of purity and calm that stands apart from the surrounding urban chaos.
Natural wood textures on the exterior help the chapel harmonize with the surrounding greenery. Large windows positioned at eye level frame views of the landscape while preserving privacy within the dense cityscape.
Inside the main hall, white walls and glimpses of nature create a serene setting for prayer. With light gently falling from above, the space becomes a quiet retreat—simple, solemn, and still—amid the city’s restless pace.
Related project: CMP Inspiration



















